Filling and footing detail. Download cad dwg file | CADBULL
Description
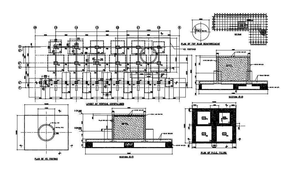
Filling and footing detail provided in this AutoCAD drawing file. this file consists of filling detail of column and footing detail with dimensions and material specifications. this can be used by architects and engineers. Download this 2d Autocad drawing file.
File Type:
DWG
File Size:
196 KB
Category::
Construction
Sub Category::
Concrete And Reinforced Concrete Details
type:
Gold
Uploaded by:

